Welcome to 2367 Boynton Place, a pristine multi-family residence in the heart of Gravesend. Offered for the first time, this exceptional solid brick home seamlessly blends scale, functionality, and timeless appeal. Situated on a quiet, tree-lined block in one of the neighborhood’s most desirable locations, the property is meticulously maintained, features a private gated driveway, and will be delivered fully vacant.
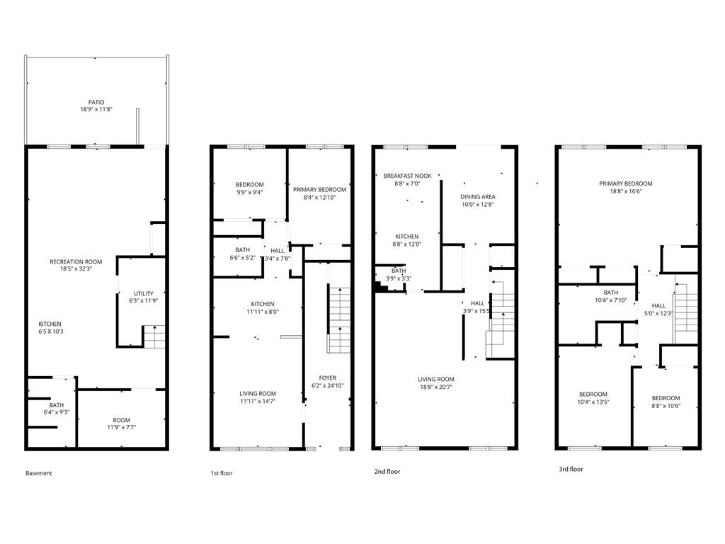
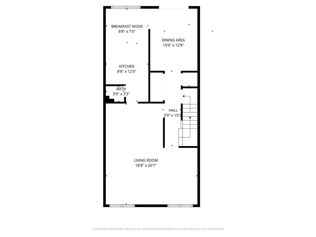
Spanning three levels, this sun drenched home offers five generously sized bedrooms, each equipped with large double-door closets, along with two spacious eat-in kitchens featuring granite countertops, a new stainless steel cooktop, and ample pantry storage. The thoughtfully designed layout includes a formal dining room, expansive living areas, and a seamless combination of hardwood and tile flooring throughout.
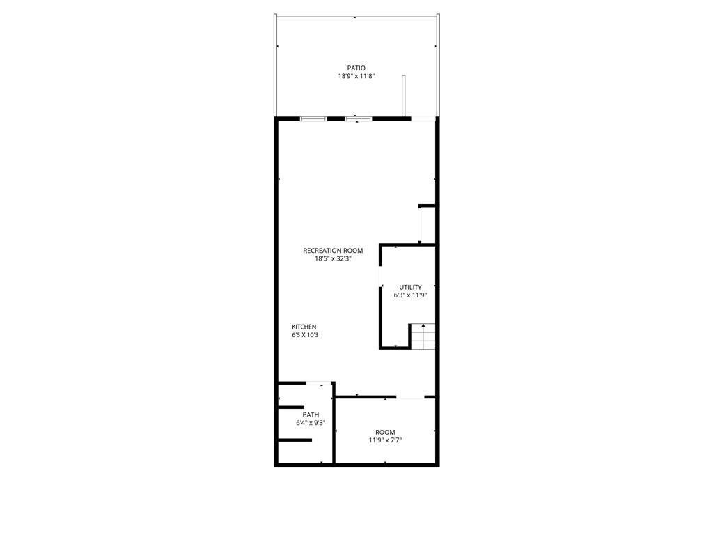
The fully finished basement provides additional versatility and value, complete with windows that invite natural light, a full bathroom, abundant storage, and direct access to a private backyard, ideal for extended living, recreation, or entertaining.
Recent upgrades further enhance the home’s appeal, including updated windows, a newer roof, brick pointing, and tasteful renovations to the first-floor kitchen and bathroom.
Conveniently located near a wide array of shopping, dining, and everyday amenities, the property also offers easy access to public transportation, including the B1 bus line and two nearby subway service stations at Avenue X and 86th Street with the N, W, and F trains providing a direct commute into Manhattan.
A rare opportunity to acquire a turnkey home in a prime Brooklyn location.
Welcome to 2367 Boynton Place, a pristine multi-family residence in the heart of Gravesend. Offered for the first time, this exceptional solid brick home seamlessly blends scale, functionality, and timeless appeal. Situated on a quiet, tree-lined block in one of the neighborhood’s most desirable locations, the property is meticulously maintained, features a private gated driveway, and will be delivered fully vacant.
Spanning three levels, this sun drenched home offers five generously sized bedrooms, each equipped with large double-door closets, along with two spacious eat-in kitchens featuring granite countertops, a new stainless steel cooktop, and ample pantry storage. The thoughtfully designed layout includes a formal dining room, expansive living areas, and a seamless combination of hardwood and tile flooring throughout.
The fully finished basement provides additional versatility and value, complete with windows that invite natural light, a full bathroom, abundant storage, and direct access to a private backyard, ideal for extended living, recreation, or entertaining.
Recent upgrades further enhance the home’s appeal, including updated windows, a newer roof, brick pointing, and tasteful renovations to the first-floor kitchen and bathroom.
Conveniently located near a wide array of shopping, dining, and everyday amenities, the property also offers easy access to public transportation, including the B1 bus line and two nearby subway service stations at Avenue X and 86th Street with the N, W, and F trains providing a direct commute into Manhattan.
A rare opportunity to acquire a turnkey home in a prime Brooklyn location.
Listing Courtesy of RE/MAX Elite